详细说明
生产线布置图
上料平台—开卷机—伺服送料—冲孔冲压—辊压成型—切断—翻转送料

设备概述:
1.双悬臂齿轮传动装置,机器的制造宽度可调整持续,可改变型材的宽度和高度。
2.牌坊20道成型,主机由交流电机,减速机,牌坊,变速箱,水平调节系统和轧制模具。机座和传输采用焊接结构,具有硬度的处理,轧辊材质为45#钢。
3.辊压成型工艺是由德国COPRA软件制作;进行有限元工艺分析和检查。提高线速度,降低成形阻力。从而保证设备的准确度和稳定性。

技术参数:




电缆桥架冷弯成型生产线成型部分


电缆桥架冷弯成型生产线传动部分

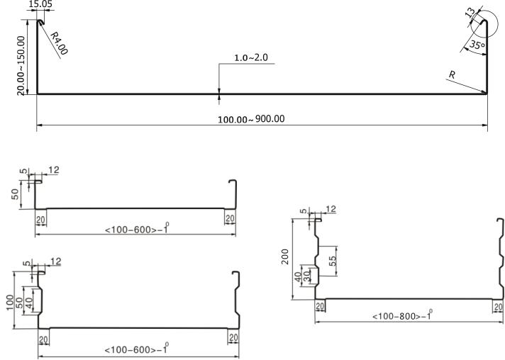
电缆桥架板型图




电话:0373-3526651 办公室
邮箱:2241601823@qq.com
地址:新乡市新飞大道1018号新乡科技产业园区
邮箱:2241601823@qq.com
地址:新乡市新飞大道1018号新乡科技产业园区
-
立体车库设备冷弯生产线 -
TF机车用型钢系列冷弯生产线 -
TF高速公路护栏冷弯生产线 -
TFU400-7X汽车大梁冷弯生产线 -
TF金属仓1.2-27/90仓顶板冷弯生产线 -
TF金属粮仓仓储立柱冷弯生产线 -
TF养鸡设备鸡笼饲喂型材冷弯生产线 -
TF粮食提升机外壳生产线 -
TF料仓波纹板冷弯生产线 -
TF畜牧定位栏底梁冷弯生产线 -
TF养殖设备型材系列冷弯生产线 -
阳极板行业--480、ZT24冷弯生产线 -
TF1500*6保护板冷弯生产线 -
TF光伏支架C型钢冷弯生产线 -
TF光伏支架/金属支吊架型钢冷弯生产线 -
TF钢管束型钢冷弯生产线 -
钢板桩冷弯生产线 -
脚踏板冷弯生产线 -
门板设备冷弯生产线 -
门框设备冷弯生产线 -
TF箱房型钢生产线 -
TF抱合梁冷弯生产线 -
聚氨酯板材设备冷弯生产线 -
屋面板冷弯生产线 -
TF楼承板冷弯生产线 -
琉璃瓦冷弯生产线 -
TF C/Z型钢冷弯生产线 -
TF动力柜立柱冷弯生产线 -
梯边机冷弯生产线 -
机车导轨冷弯生产线 -
母线槽冷弯生产线 -
货架底板冷弯生产线 -
货架拉杆冷弯生产线 -
TF 货架立柱冷弯生产线 -
电缆桥架冷弯生产线 -
金属灯罩冷弯生产线 -
电气柜冷弯生产线 -
电梯导轨冷弯生产线
















